2210 N Buhrstone Ave Eagle, ID 83616
Directions
State St, N Palmer Ln, W Stillmore St to Millstone Farms
Includes
Schools
Description
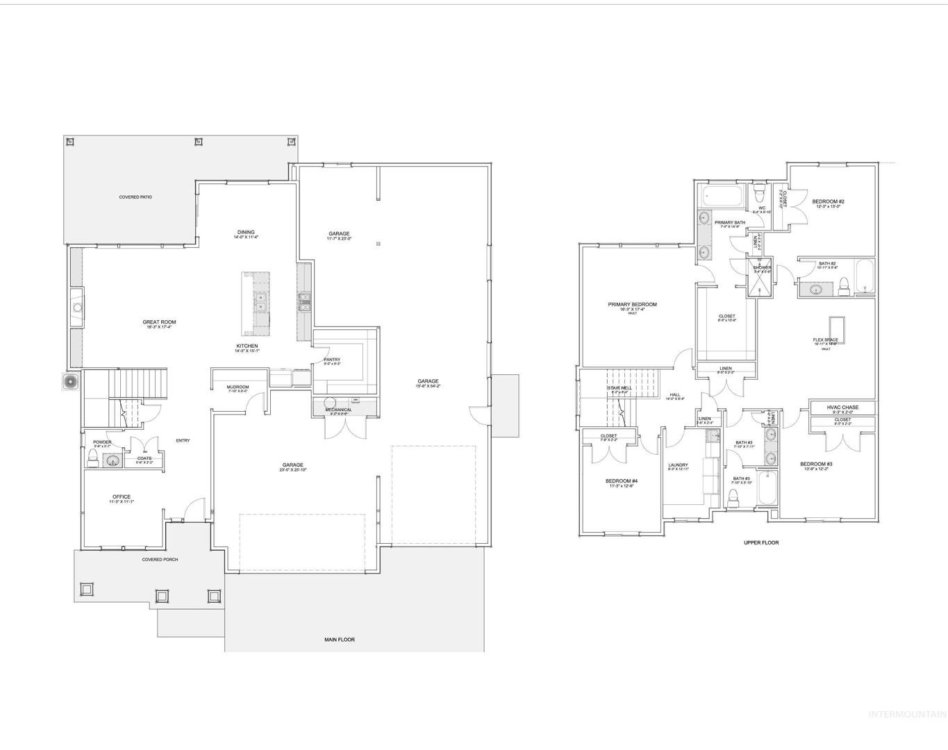
The Fallbrook RV by Biltmore Company LLC features an outstanding 54` deep RV bay and a 11`x23` shop space!! Inside, enjoy a warm and cozy great room, complete with a gas fireplace and stylish built-ins, sleek quartz countertops and top-of-the-line appliances in the kitchen and an upstairs primary suite where a vaulted ceiling and beam adds a touch of grandeur. Guests will appreciate their private en-suite located upstairs. With two versatile flex spaces, this home effortlessly adapts to your lifestyle. Located on a corner lot, you`ll love the east-facing backyard providing serene morning light. The beautiful new home community of Millstone Farm is located at the quiet end of Eagle, surrounded by the serene setting of Idaho mountain views. Boasting generous lot sizes, a heavily landscaped entry, a large community pool with changing rooms, beautiful walking paths, and gorgeous panoramic views of the valley, Millstone Farm will be the place you will want to call home.
LOT 10 BLK 03 MILLSTONE FARM SUB NO 01
| Listing info for this property courtesy of Silvercreek Realty Group Information deemed reliable but not guaranteed. Buyer to verify all information. All properties are subject to prior sale, change or withdrawal. Neither listing broker(s), shall be responsible for any typographical errors, misinformation, misprints and shall be held totally harmless. |
















