6587 W Mattawa Dr Meridian, ID 83646
Directions
From McDermott, W McMillan, S Glassford, E Los Flores, S Alameda Creek Ave
Includes
Schools
Description
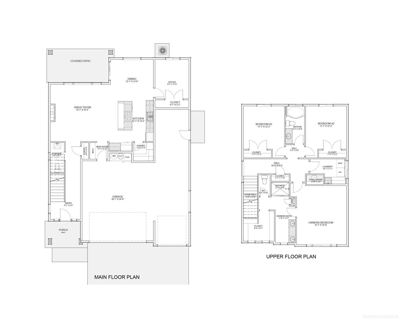
The Highgate by Biltmore Company LLC features a remarkable 4-car garage! Highlights of this floorplan include a bright and airy great room with a stone fireplace, office/bedroom on the main and a stunning kitchen with quartz countertops, stainless steel appliances with double ovens and walk-in pantry. Upstairs you`ll find the primary bedroom, secondary bedrooms and laundry room. The primary bedroom with ample natural light features an ensuite with dual vanities, quartz countertops and a beautiful tiled walk-in shower. Enjoy Idaho`s seasons from your backyard covered patio! Lincoln Creek offers a state-of-the-art clubhouse including a dog wash station, community pool, social areas, pickleball court, acres of open space and much more.
LOT 32 BLK 02 GANDER CREEK NORTH SUB NO 02
| Listing info for this property courtesy of Silvercreek Realty Group Information deemed reliable but not guaranteed. Buyer to verify all information. All properties are subject to prior sale, change or withdrawal. Neither listing broker(s), shall be responsible for any typographical errors, misinformation, misprints and shall be held totally harmless. |


















