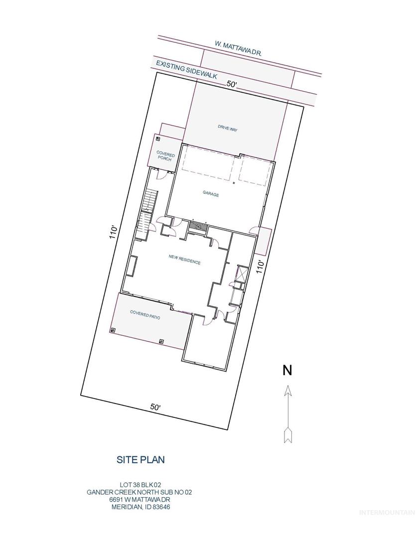
6691 W Mattawa Dr Meridian, ID 83646
Directions
From McDermott, W McMillan, S Glassford, E Los Flores, S Alameda Creek Ave
Includes
Schools
Description
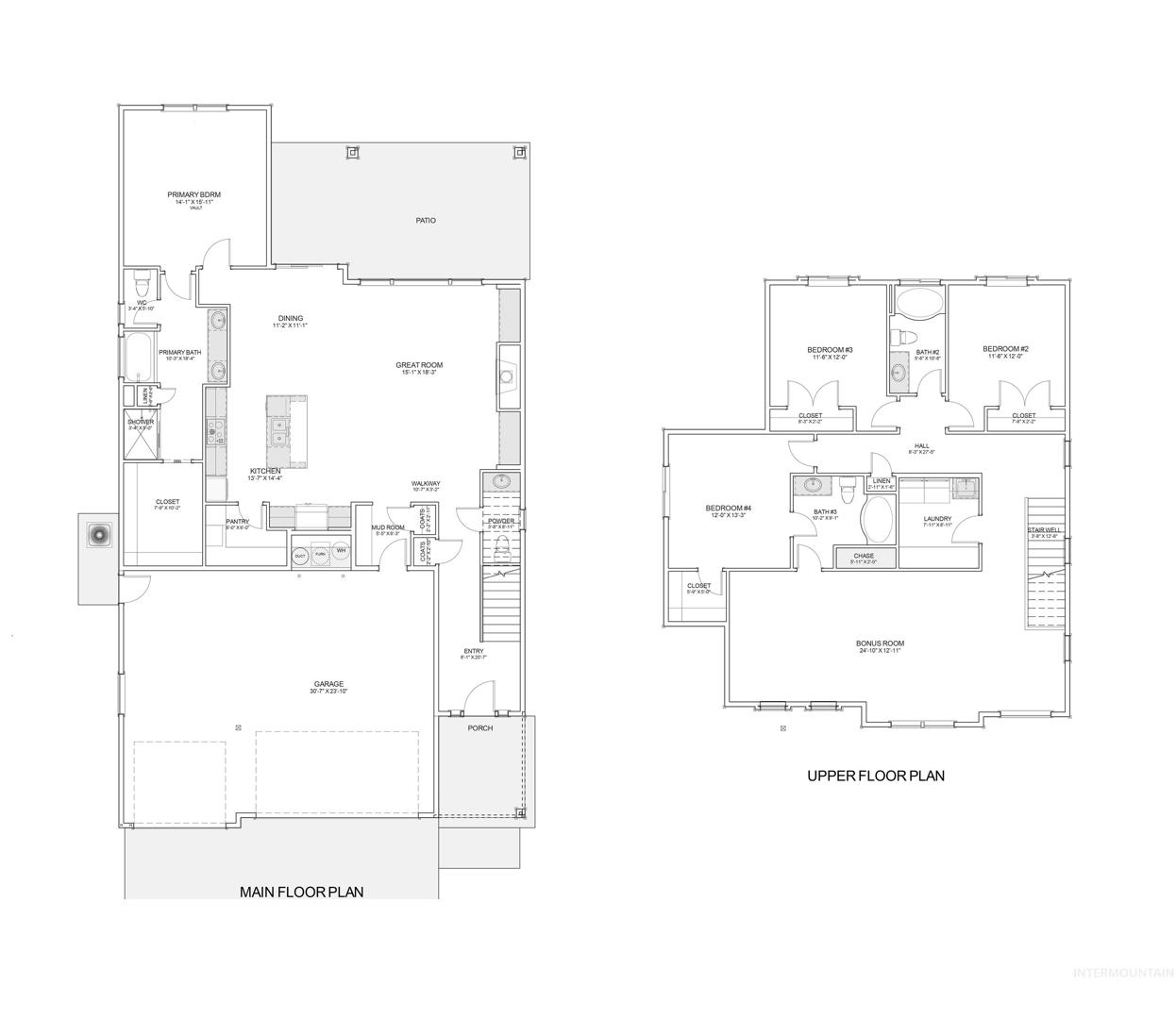
Introducing "The Landon" by Biltmore Company LLC, a stunning new floorplan designed for comfort, function, and style. This home offers 4 bedrooms and 3.5 baths, with the primary suite conveniently located on the main level for easy living. The open great room features a cozy fireplace surrounded by custom built-ins, creating a warm and inviting gathering space. The kitchen is a chef’s dream with quartz countertops, double ovens, and an expansive walk-in pantry. Upstairs, you’ll find a generous 25` x 13` bonus room perfect for a media room or play space along with a guest suite featuring its own walk-in closet. The home has been thoughtfully designed with ample storage throughout and a large covered patio ideal for outdoor entertaining. PHOTOS ARE SIMILAR & ARE USED TO SHOW ARTISTRY & WORKMANSHIP OF BUILDER.
LOT 38 BLK 02 GANDER CREEK NORTH SUB NO 02
| Listing info for this property courtesy of Silvercreek Realty Group Information deemed reliable but not guaranteed. Buyer to verify all information. All properties are subject to prior sale, change or withdrawal. Neither listing broker(s), shall be responsible for any typographical errors, misinformation, misprints and shall be held totally harmless. |


















