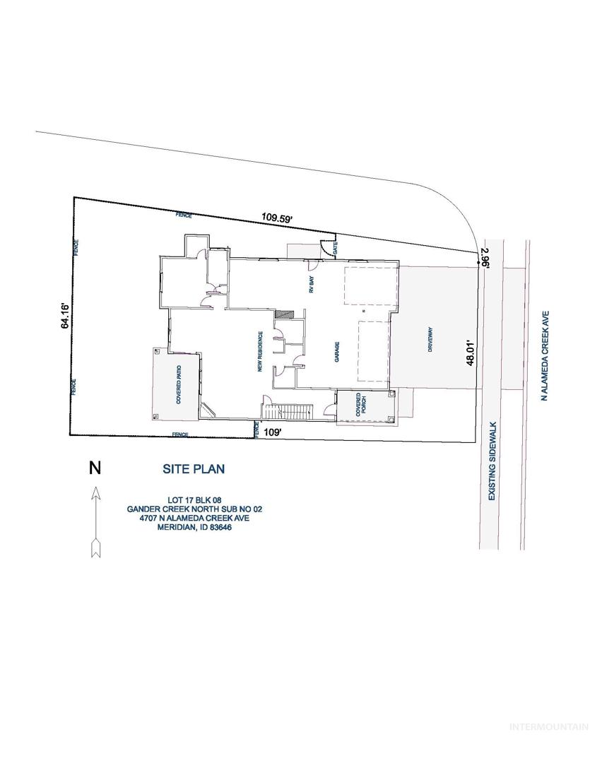
4707 N Alameda Creek Ave Meridian, ID 83646
Directions
From McDermott, W McMillan, S Glassford, E Los Flores, S Alameda Creek Ave
Includes
Schools
Description
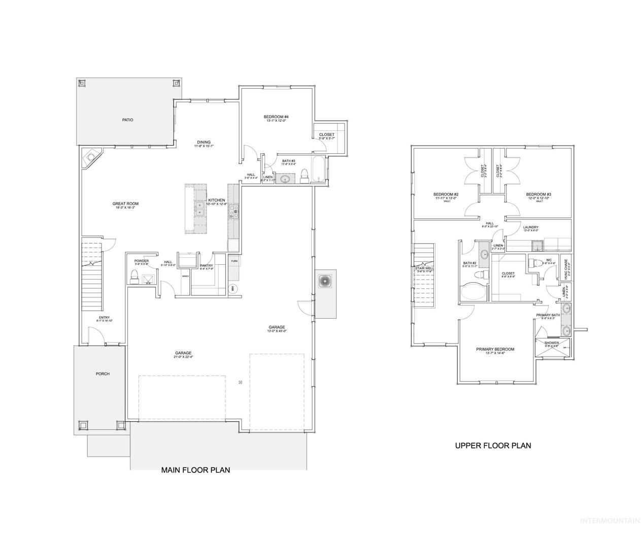
New floorplan from Biltmore Company LLC, The Hamilton RV, boasts an impressive 1,132-square-foot, 4-car garage with a 14` RV door, offering ample space for your RV, toys, and additional storage. Highlights of this new floorplan include a bright and airy great room with stone fireplace and a stunning kitchen with quartz countertops, stainless steel appliances with double ovens and a spacious pantry. The downstairs guest suite creates the perfect home office or relaxing space for guests to feel right at home. Upstairs you’ll find the primary bedroom, secondary bedrooms and laundry room. The primary bedroom with ample natural light features an ensuite with dual vanities, quartz countertops and a beautiful tiled walk-in shower. The backyard allows for lots of entertaining and relaxing on the covered patio! Lincoln Creek offers a state-of-the-art clubhouse including a dog wash station, community pool, social areas, pickleball court, acres of open space and much more.
LOT 17 BLK 08 GANDER CREEK NORTH SUB NO 02
Listing info for this property courtesy of Silvercreek Realty Group Information deemed reliable but not guaranteed. Buyer to verify all information. All properties are subject to prior sale, change or withdrawal. Neither listing broker(s), shall be responsible for any typographical errors, misinformation, misprints and shall be held totally harmless. |