6566 W Los Flores Dr Meridian, ID 83646
Directions
From McDermott, W McMillan, S Glassford, E Los Flores
Includes
Schools
Description
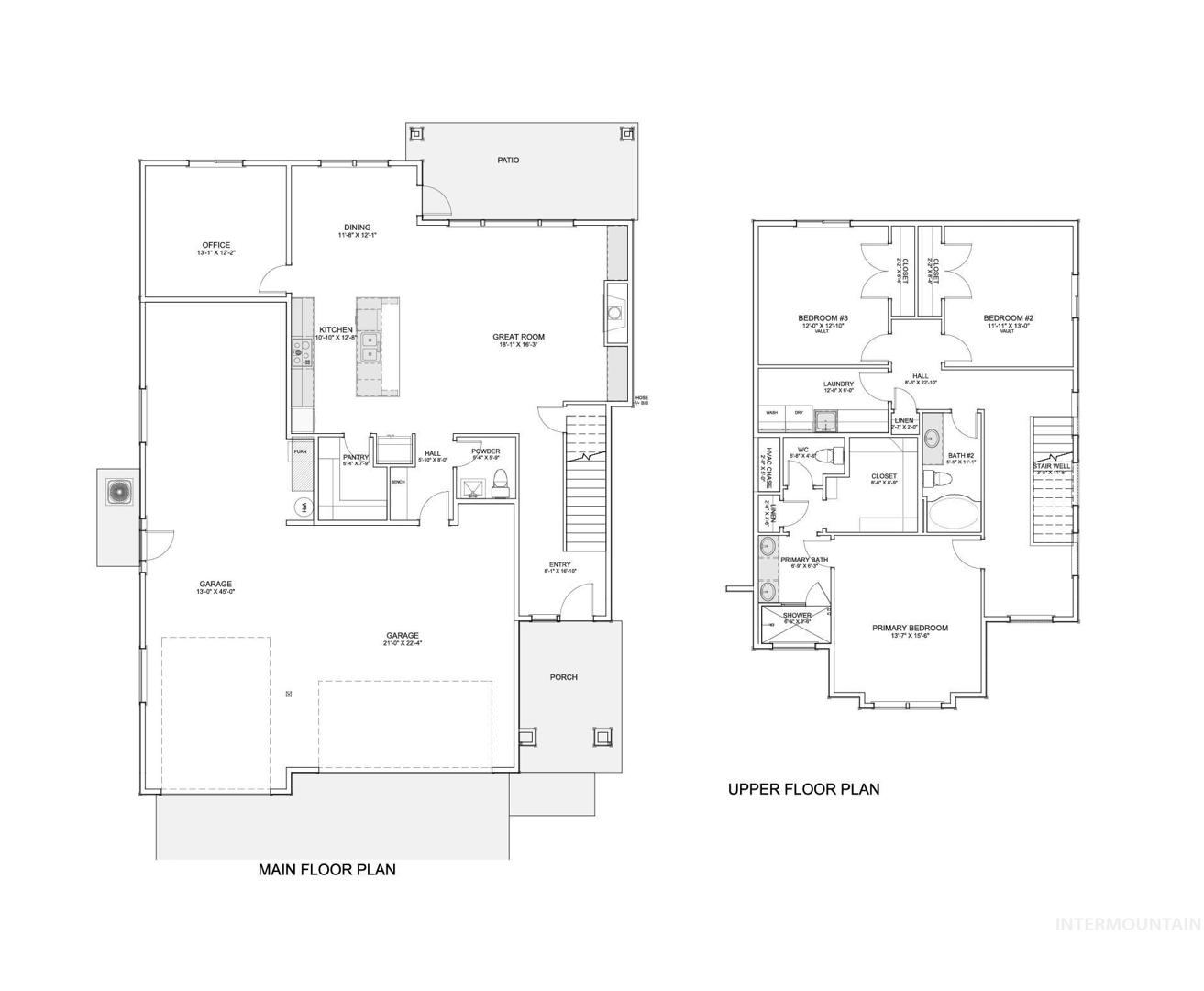
For a limited time enjoy a full turnkey package including refrigerator, washer/dryer and window coverings!** New floorplan from Biltmore Company LLC, The Hamilton RV boasts an impressive 1,132-square-foot, 4-car garage with a 14` RV door, offering ample space for your RV, toys, and additional storage. Highlights of this new floorplan include a bright and airy great room with stone fireplace and a stunning kitchen with quartz countertops, stainless steel appliances with double ovens and a spacious pantry. The downstairs office/den creates the perfect home office. Upstairs you’ll find the primary bedroom, secondary bedrooms and laundry room. The primary bedroom with ample natural light features an ensuite with dual vanities, quartz countertops and a beautiful tiled walk-in shower. The backyard allows for lots of entertaining and relaxing on the covered patio! Lincoln Creek offers a state-of-the-art clubhouse including a dog wash station, community pool, social areas, pickleball court, acres of open space and much more.
LOT 15 BLK 02 GANDER CREEK NORTH SUB NO 02
| Listing info for this property courtesy of Silvercreek Realty Group Information deemed reliable but not guaranteed. Buyer to verify all information. All properties are subject to prior sale, change or withdrawal. Neither listing broker(s), shall be responsible for any typographical errors, misinformation, misprints and shall be held totally harmless. |




































